ようこそゲストさん
新規登録
ログイン
  • 最近見た物件 00
  • 検討リスト 00

最終更新:2026年04月14日

03-3376-4694

本社:東京都渋谷区初台1-37-11 営業時間:AM9;30~20;00

コムハウジング > 株式会社コムハウジングのスタッフブログ記事一覧 > [新着物件]文京区千石3丁目売地|1億800万円

[新着物件]文京区千石3丁目売地|1億800万円

カテゴリ:新着物件
新着物件「文京区千石3丁目売地|1億800万円」の写真を本日撮影してきました。

JR山手線「巣鴨」駅徒歩10分、閑静な低層住宅街の売地です。

まいばすけっとまで徒歩1分。

建築条件はありませんので、お好きなハウスメーカーで建築可能。

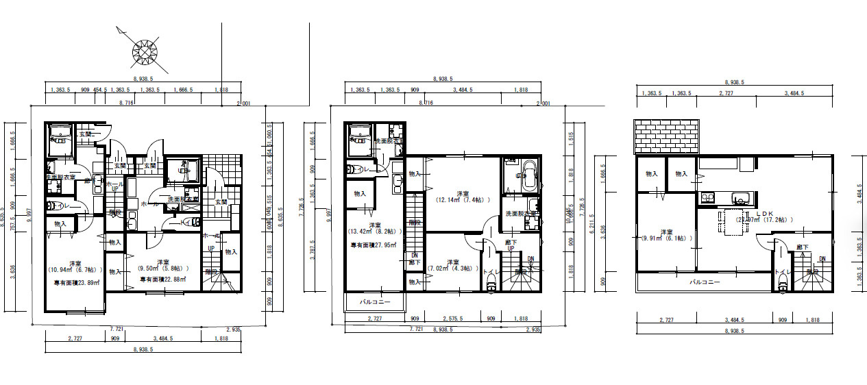
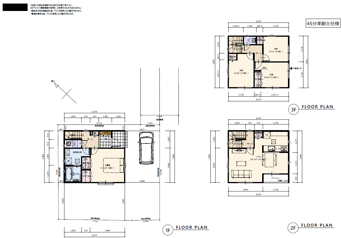
戸建プラン・賃貸併用プランございます。

担当者までお気軽にお問合せ下さい
物件担当者:高場(たかば)



おすすめポイント


■お好きなハウスメーカーで建築可能
■戸建プラン・賃貸併用プラン有り
■建築会社のご紹介可能
■閑静な住宅街
■整形地
■更地渡しご相談可能
■まいばすけっと 徒歩1分








お問い合わせ先


物件担当者:高場(たかば)


≪ 前へ|[未公開物件]渋谷区代々木2丁目一棟ビル(全空)   記事一覧   スルガ銀行住宅ローン(高額プラン)の取扱いを開始いたしました|次へ ≫

トップへ戻る