ようこそゲストさん
新規登録
ログイン
  • 最近見た物件 00
  • 検討リスト 00

最終更新:2026年02月09日

03-3376-4694

本社:東京都渋谷区初台1-37-11 営業時間:AM9;30~20;00

コムハウジング > (戸建(売買))路線・駅から探す > 東急電鉄東急世田谷線 > 松陰神社前駅 > 若林ハイホーム

若林ハイホーム

若林ハイホーム

所在地 交通 建物
東京都世田谷区若林3丁目

東急世田谷線松陰神社前」駅 徒歩4分

築57年
13階建 地下1階
鉄骨鉄筋コンクリート

物件情報

【外観】 | 若林ハイホーム

※写真や図と実際の現状とが異なる場合は現状を優先させていただきます

  • 【外観】 | 若林ハイホーム
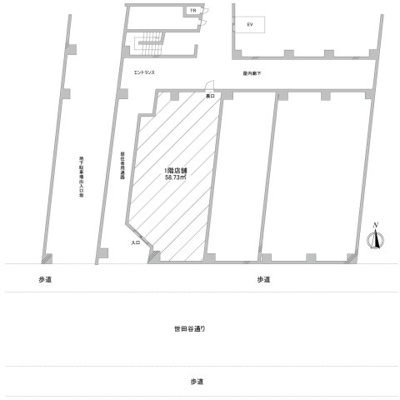
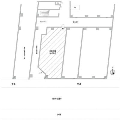
  • 【区画図】 | 若林ハイホーム
  • 【外観】 | 若林ハイホーム
  • 【内装】 | 若林ハイホーム
  • 【内装】 | 若林ハイホーム
  • 【内装】 | 若林ハイホーム
  • 【キッチン】 | 若林ハイホーム
  • 【その他共用部分】 | 若林ハイホーム
  • 【エントランス】 | 若林ハイホーム

※ご覧になりたい写真をクリックすると
拡大されて表示されます。

コメント【外観】

情報の見方

若林ハイホーム の物件概要

【店舗】

所在地 東京都世田谷区若林3丁目
交通
価格 4,950万円 利回り 表面7.80%/実質7.80%
管理費 12,650円 面積/坪数 58.73㎡ / 17.76坪
築年月(築年数) 1968年 5月 ( 築57年 ) 棟総戸数 101戸
種別/構造 店舗 / 鉄骨鉄筋コンクリート 階建 13階建 地下1階
取扱会社
  • 株式会社コムハウジング
  • 東京都渋谷区初台1丁目37番11 
  • TEL:0120-469-455
  • 東京都知事 (7) 第72105号
  • 社団法人 東京都宅地建物取引業協会会員、公益社団法人首都圏不動産公正取引協議会、初台商盛会会員、幡ヶ谷六号通り商店街組合員

※地図上に表示される物件の位置は付近住所に所在することを表すものであり、実際の物件所在地とは異なる場合がございます。

若林ハイホーム へのお問い合わせは 株式会社コムハウジングまで

0120-469-455

〒151-0061

東京都渋谷区初台1丁目37番11 

09:30~20:00  定休日:水曜定休

お問い合わせ

若林ハイホームの販売物件情報

所在階 価格 利回り 管理費 面積/坪数 詳細 検討リスト
1階 4,950万円 表面7.80% / 実質7.80% 12,650円 58.73㎡ / 17.76坪 詳細を見る 追加する

若林ハイホームへのお問い合わせ

必要項目の入力

0/0
必須項目完了

確認画面へ
お進み下さい

0/0
必須項目完了

確認画面へ
お進み下さい

必須

お名前

必須

メールアドレス

必須

携帯番号

必須

内容

【若林ハイホームへのお問い合わせ】

利用規約及びプライバシーポリシーを必ずお読みください。左記内容に同意いただいた場合は、確認画面へお進み下さい。

未入力項目があります

▼ご希望の物件をお探しします
物件リクエスト

おすすめ物件

会社概要

会社画像
株式会社コムハウジング
  • 〒151-0061
  • 東京都渋谷区初台1丁目37番11 
  • 0120-469-455
  • TEL/03-3376-4694
  • FAX/03-3376-4695
  • 東京都知事 (7) 第72105号

トップへ戻る